Ngưỡng mộ cách cải tạo căn hộ 30m2 ẩm mốc, xập xệ

Nằm trong khu chung cư cũ ở TP.HCM nên không gian sống của căn hộ 30m2 này đã xuống cấp, cũ ẩm và xập xệ khiến các hoạt động sinh hoạt gặp nhiều bất tiện nên gia chủ trẻ đã quyết định cải tạo để làm showroom mỹ phẩm nhỏ kết hợp nhà ở.

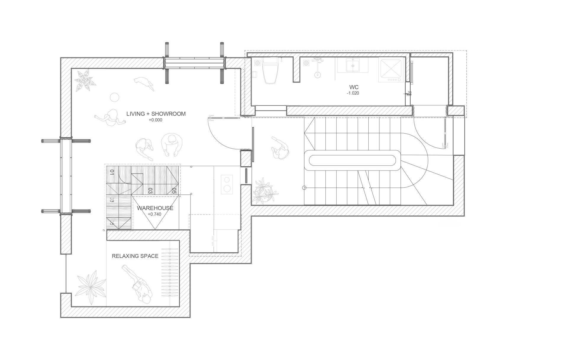
Theo cấu trúc cũ, khu bếp chung với phòng vệ sinh bên trong căn hộ mặc dù đã có một khu WC cá nhân riêng liền kề bên ngoài (khu vực này đã xuống cấp nên không được tận dụng) gây bất tiện và khó chịu.

Do đó nhóm kiến trúc sư (KTS) quyết định quy hoạch lại bố cục không gian, tận dụng độ cao trần là 3,5m để làm hệ sàn lửng hỗ trợ.

Các sàn lửng đa năng được bố trí ở cao độ phù hợp và liên kết với nhau thông qua hệ thống cầu thang đa dụng.

Nhờ đó căn hộ có thêm gác lửng và đây không chỉ là nơi ngủ nghỉ mà còn là nơi đọc sách, thư giãn tự do của gia chủ.


Nội thất tối giản và linh hoạt, có thể di chuyển đến những không gian khác nhau trong phòng khi cần sử dụng.

Độc đáo nhất là hệ tủ kệ thang, đây là tổ hợp của nhiều tủ nhỏ ghép lại với nhau và khi gia chủ không còn nhu cầu ở lại căn hộ, toàn bộ hệ tủ có thể được tháo lắp, dễ dàng vận chuyển đến nhà mới.

Nội thất của căn hộ mang màu nền trung tính để làm nổi bật màu sắc của các món đồ nội thất, nhờ đó mà không gian trông rộng rãi hơn hẳn.


Nhóm KTS bị ấn tượng bởi nét tinh xảo của hệ cửa sổ cũ nên đã quyết định giữ lại chi tiết này và chỉ sơn trắng để phù hợp với tổng thể của công trình.



Sau 2 tháng cải tạo với chi phí hợp lý, căn hộ 30m2 đã hoàn toàn “biến hình” và cho thấy rằng diện tích không phải nhược điểm quá lớn nếu biết cách xử lý phù hợp.

Article sourced from EVA.
Original source can be found here: https://eva.vn/nha-dep/can-ho-30m2-am-moc-xap-xe-nhu-rong-ra-gap-doi-nho-cach-cai-tao-dac-biet-c169a496837.html



