Ngôi nhà độc đáo, nơi mọi không gian trống đều biến thành nơi trồng cây
Ngôi nhà này mang tên "Vườn trên mái" tọa lạc tại thành phố Nha Trang, được gia chủ gửi gắm mong muốn là nơi thư giãn cho cả gia đình và tiếp đón bạn bè đúng nghĩa.

"Vườn trên mái" được thiết kế để thích ứng với khí hậu nhiệt đới, đồng thời tăng sự kết nối giữa con người và thiên nhiên thông qua các không gian sống, không gian thư giãn nhờ giải pháp kiến trúc.

"Vườn trên mái" (trái) nằm cạnh nơi ở của một gia đình 2 thế hệ, dù được xây mới hoàn toàn nhưng nhờ giải pháp kết nối hài hòa từ kiến trúc đến cảnh quan nên công trình trở thành một phần quan trọng trong tổng thể bối cảnh và khó có thể nhận ra đâu là cũ, đâu là mới.

Mặt tiền là những tấm rèm xanh cùng tông màu trầm ấm của gỗ dựa trên kết cấu sẵn có được phân bổ hợp lý, vừa để giảm bức xạ nhiệt vừa mang lại bóng mát và sự thơ mộng cho ngôi nhà.

Thay vì có một khoảng sân rộng như những ngôi nhà trong làng, KTS tạo ra nhiều khoảng sân ở các độ cao khác nhau, phù hợp với kết cấu chiều cao của ngôi nhà. Trong đó gác lửng tạo một khoảng sân để thông với sân giữa của ngôi nhà.

Không gian vườn nông nghiệp trên mái chuyển xuống sân ở tầng lửng tạo thành sân chơi - vườn rau nối từ mái xuống tầng trệt.

Vườn rau quả cung cấp nhiều loại thực phẩm sạch, là nguồn lương thực chính của gia đình, nếu không dùng hết, rau quả sẽ được đem biếu bà con lối xóm tạo để tăng tình làng nghĩa xóm.


Các không gian trong nhà như bếp, phòng ăn, phòng khách đều thiết kế mở ra khu vườn để tận hưởng làn gió mát và không khí trong lành.

Đồ nội thất trong nhà ưu tiên sử dụng chất liệu gỗ để đem lại cảm giác ấm cúng và thân thiện với không gian vườn.



Phòng khách ở tầng 1 còn đặt một bàn đánh tennis để các thành viên trong nhà và bạn bè giải trí.

Mọi không gian trong nhà đều có cây xanh bao phủ.

Cầu thang gỗ gây ấn tượng.




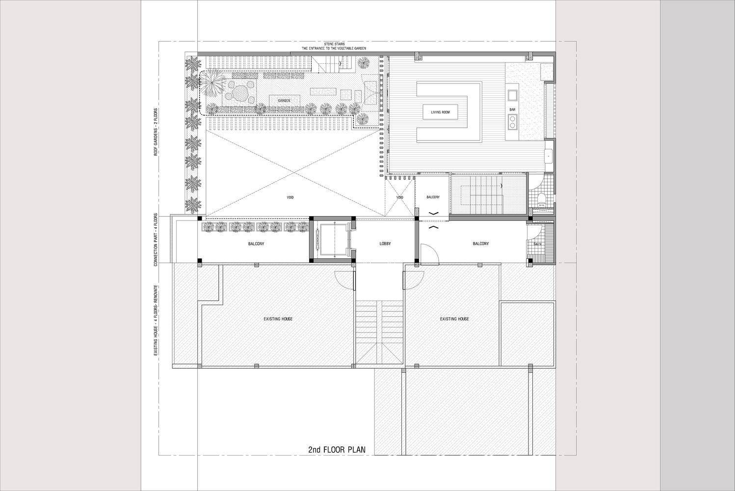
Bản vẽ mặt bằng ngôi nhà.

CHUYÊN PHỤC VỤ TANG LỄ CỘNG ĐỒNG Á CHÂU
Article sourced from EVA.
Original source can be found here: https://eva.vn/nha-dep/me-man-voi-ngoi-nha-bien-moi-khong-gian-trong-thanh-noi-canh-tac-c169a497409.html



