Ngôi nhà như một khối hộp vuông vức, nhưng ai cũng mê vì có thiết kế thông minh

Nhìn từ bên ngoài, ngôi nhà như một khối hộp vuông vức, không có gì nổi bật, nhưng lại khá đặc biệt và khác với kiến trúc chung của cả khu phố.

Các không gian nhỏ sắp xếp linh hoạt và đều hướng ra khoảng thông tầng ở giữa.

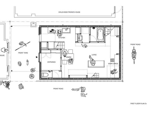
Tất cả khu vực cần thiết cho cuộc sống sinh hoạt hằng ngày đều được sắp xếp hợp lý trong một không gian chỉ rộng 48 mét vuông

Đồ nội thất cũng được tiết chế nhưng vẫn chú trọng vẻ đẹp hiện đại, tinh tế

Khu vực để xe ô tô thông thoáng và tiện lợi

Về chiều tối, hệ thống đèn vẫn cung cấp đủ ánh sáng cho cả căn nhà

Sàn nhà được lát bằng gỗ sang trọng

Tuy nhiên vì hạn chế diện tích, ngôi nhà chưa đảm bảo được tính riêng tư khi mỗi người chia sẻ chung một không gian mỗi ngày thay vì có phòng ngủ riêng

Màu trắng chính là đại diện “vũ khí” đem lại vẻ đẹp hiện đại cho tổ ấm của bạn. Trong thiết kế nội thất, màu trắng luôn được ưu ái như 1 gam màu không bao giờ lỗi thời

Tổng quan thiết kế của ngôi nhà trong mơ

Article sourced from EVA.
Original source can be found here: http://eva.vn/https://eva.vn/nha-dep/nha-1-tang-chi-48m2-van-rong-thenh-thang-nho-thiet-ke-sieu-doc-c169a368220.html


